עיצוב נקי ובעל נוכחות
הפרויקט תוכנן ועוצב למטרות 'פליפינג' (Flipping) – שיפוץ יסודי להשבחת הנכס לקראת מכירה. בהתאם לכך, גובשה פרוגרמה ורסטילית ופונקציונלית בקו עיצובי נקי, מוקפד ובעל נוכחות.

הדירה שוכנת בלב רובע פטרוגרד (Petrogradskaya) המבוקש בסנט פטרסבורג, במיקום אסטרטגי בין שדרות בולשוי לפארק אלכסנדר. היא מתאפיינת בחללים רחבי ידיים ובשפע של אור טבעי.

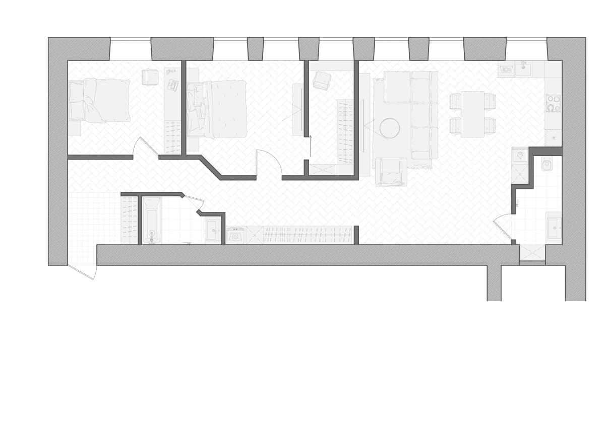
המבנה המקורי הציב אתגר תכנוני משמעותי: מערך חדרים ליניארי ('מסרק') עם חדר רחצה בודד בקצה המסדרון. מגבלות הזמן והרישוי הכתיבו פתרונות יצירתיים בתוך המסגרת הקיימת. דרישות הסף כללו הוספת חדר רחצה באזור הכניסה, יצירת חדרי ארונות (Walk-in closets) רחבי ידיים והקצאת אזור שירות נפרד.
אתגר מרכזי עלה מרישומי המקרקעין: הכניסה המקורית לחדר הרחצה עברה דרך המטבח – תכנון שאינו עומד בתקנים המודרניים. כדי להימנע מסיכוני רישוי, מיקום השירותים נותר ללא שינוי, אך תוכנן מעבר חכם דרך חלל שהוגדר רשמית כ'מזווה' – פתרון פונקציונלי למגבלה טכנית מורכבת.
התכנון הסופי כולל סוויטת הורים עם חדר ארונות מאוורר, ארון שירות ייעודי למכונת כביסה ומייבש, ומטבח המנצל את האור הטבעי עם כיור הממוקם תחת החלון. בחלל המגורים שולב קמין המהווה מוקד עיצובי (Focal point) ומוסיף חמימות לבית כולו.





























































