מינימליזם סקנדינבי במתחם Palazzo
אזור המפעל הבלטי באי וסילייבסקי בסנט פטרסבורג עובר בשנים האחרונות תהליכי פיתוח מואצים, המשלבים מתחמי מגורים חדשים ומרחבי פנאי מודרניים. במתחם 'פאלאצו', מהפרויקטים הבולטים באזור, רכשו לקוחות הסטודיו את דירתם החדשה.
הנכס ממוקם בקומה האחרונה ומאופיין בנתונים טבעיים יוצאי דופן – חלונות רחבים מרצפה עד תקרה ויציאה פרטית לטרסה מכל חדרי הבית. מהמרפסת נשקף נוף המשלב היסטוריה ואדריכלות תעשייתית: אנדרטת האוונגרד הרוסי, מפעל 'קרסני גבוזדילשצ'יק' והמספנות הפעילות של המפעל הבלטי.

האתגר התכנוני
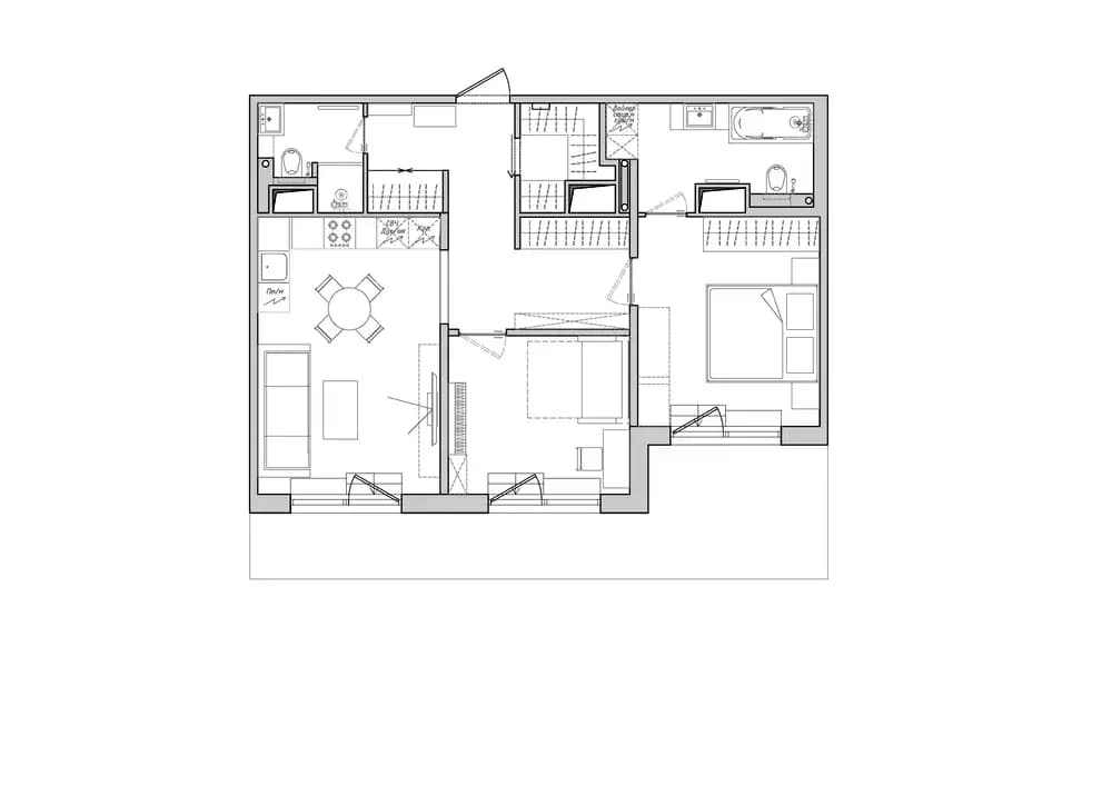
בעלי הדירה, משפחה צעירה שעברה ממרכז העיר ההיסטורי למבנה מודרני, פנו לסטודיו בשלב מתקדם, סמוך למועד מסירת המפתח. התכנון המקורי הציב אתגרים הנדסיים מורכבים: בדירת שלושה חדרים זו, התגלה כי כל הקירות הפנימיים הם קירות נושאים, מה שמנע אפשרות לשינויים מבניים פשוטים. בנוסף, תשתיות כמו קולטן שפכים וצינור אוורור עברו במרכז המסדרון וקטעו את הרצף התכנוני.

עמדו בפנינו שתי חלופות: ביצוע שינויים מבניים עמוקים או הסתפקות בשיפוץ קוסמטי שלא היה נותן מענה לצרכי המשפחה. הפרוגרמה הייתה מפורטת ושאפתנית לשטח של 66 מ"ר: שני חדרי רחצה, אזור שירות וכביסה, חלל ציבורי פתוח, חדר ארונות, חדר עבודה וחדר שינה נפרד. הלקוחות אישרו תכנון מחדש ויסודי, ויצאנו לדרך.

פתרונות תכנוניים ובחירה סגנונית
יצרנו שני מפתחים חדשים בקירות הנושאים הממוקמים על ציר אחד. חדר הרחצה בכניסה הוגדל על חשבון המסדרון לטובת מקלחון מרווח, ובמקום המעבר המקורי תוכנן חדר ארונות פונקציונלי. ניצול נכון של השטח אפשר גם להגדיל את חדר הרחצה ביחידת ההורים ולמקם לצדו אזור שירות קומפקטי.
המסדרון החדש הועתק לעומק הדירה ומוקם בהמשך למפתחים החדשים, צעד שיצר אפקט 'אנפילדה' – רצף מבטים פתוח המעצים את תחושת המרחב. בתהליך התכנון, החלל היחיד ששטחו צומצם היה חדר העבודה, בעוד שאר האזורים שמרו на ממדיהם המקוריים.

הקונספט הנבחר התבסס על אסתטיקה סקנדינבית בפלטה מאופקת с נגיעות דקורטיביות מדודות. למרות השטח המאתגר, הצלחנו להטמיע את כל הפונקציות המבוקשות תוך שמירה על נאמנות מלאה לתכנון המקורי. בחלל הציבורי הותקן מטבח במבנה L המנצל שתי דפנות. לצד החלון מוקמה מערכת ישיבה, ומולה מסך טלוויזיה המותקן ישירות על הקיר ללא רהיט נוסף, במטרה לשמור על זרימה נקייה בחלל.

היציאה לטרסה מכל חדרי הבית הוגדרה כעוגן תכנוני ועיצובי. במקור, המעבר החוצה היה גבוה ולא נוח בשל הפרשי מפלסים של 40 ס"מ ומיקום רדיאטור מתחת לחלון.
הפתרון נמצא ביחידת נגרות בהתאמה אישית העוטפת את הרדיאטור ומגיעה בדיוק לגובה סף החלון. כך יצרנו משטח דריכה נוח ליציאה החוצה, המשמש במידת הצורך גם כספסל ישיבה נמוך.

אלמנטים של מינימליזם סקנדינבי
במבואת הכניסה מוקם חדר ארונות ייעודי לאחסון עונתי לצד נישה למעילים בשימוש יומיומי. לאורך ציר האנפילדה שולבו ספריות וארונות סגורים השומרים על השקט הוויזואלי.
חדר השינה מאופיין בריהוט מינימליסטי ומדויק. הערך המוסף של החדר הוא הגישה לאזור המקורה בטרסה, המאובזר בריהוט חוץ נינוח. המבט אל מנופי המפעל והסדנאות הישנות מעניק לדירה איכות של רומנטיקה אורבנית. בחדר הרחצה הצמוד תוכננה נישה לאזור שירות הכולל מכונת כביסה, מייבש ואחסון לחומרי ניקוי.

הצבעוניות השולטת מבוססת על גווני אפור עמוקים. עבור קיר מרכזי המלווה את הדירה מהכניסה ועד לחזית, בחרנו בירוק מעושן (Dusty Green) המעניק נפח לחלל. בחדר השינה נצבע הקיר שמאחורי גב המיטה בגוון טרקוטה חם, המדגיש את הפרספקטיבה של הדירה מבלי ליצור ניגודיות עזה מדי.
לריצוף נבחר פרקט עץ טבעי בדוגמת 'פישבון' (אידרה) במראה גולמי. בשל גובה התקרה, התאורה מבוססת על גופים צמודי תקרה ופסי צבירה, למעט גוף תאורה דקורטיבי אחד מעל אזור הישיבה בסלון.
בחינה מדוקדקת של הפרויקט חושפת כיצד פרטים קטנים מתחברים לתמונה שלמה ומדויקת. התוצאה היא דירה פונקציונלית, עוטפת וביתית – המדד האמיתי להצלחה תכנונית.




















































