מאפייני הפרויקט
העבודה על הדירה נעשתה מול לקוחות בעלי חזון, שרכשו את הנכס לצרכי השקעה. החיבור העיצובי וההבנה ההדדית היו מיידיים; האתגר המרכזי היה עמידה במסגרת תקציב מוגדרת ובלוחות זמנים צפופים.
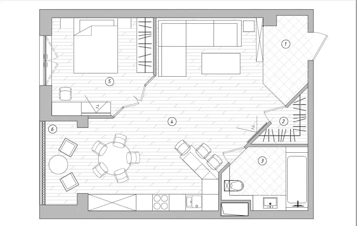
הדירה, שבמקור הייתה דירת חדר סטנדרטית, תוכננה מחדש כמרחב פתוח (Open Space) בעל גיאומטריה ייחודית, המשלב אור טבעי ותחושת ביתיות. דלתות חדר הרחצה הוטמעו בקו אפס (דלתות נסתרות), והכניסה לחדר השינה עוצבה ככנפי זכוכית המאפשרות מבט פנורמי על הדירה כולה.

נגיעות עיצוביות
חלק מרכזי בתכנון היה סיפוח הלוג'יה (המרפסת הסגורה) לחלל המגורים, תוך הקפדה על בידוד תרמי. המהלך העניק לדירה עומק וויזואלי ותוספת משמעותית של אור, המודגשים באמצעות קירות לבנים. ליצירת קונטרסט מתוחכם, נבחר מטבח שחור בקו מינימליסטי ואי מרכזי המעגן את החלל.

התוצאה הסופית
איכות הביצוע מתבטאת בחיבור של בעלי הבית לנכס. עוד לפני שהדירה הושכרה, היא הפכה למקום שנעים לשהות בו – בין אם ברחצה באמבטיה המרווחת ובין אם בארוחת ערב מול השקיעה.





















































