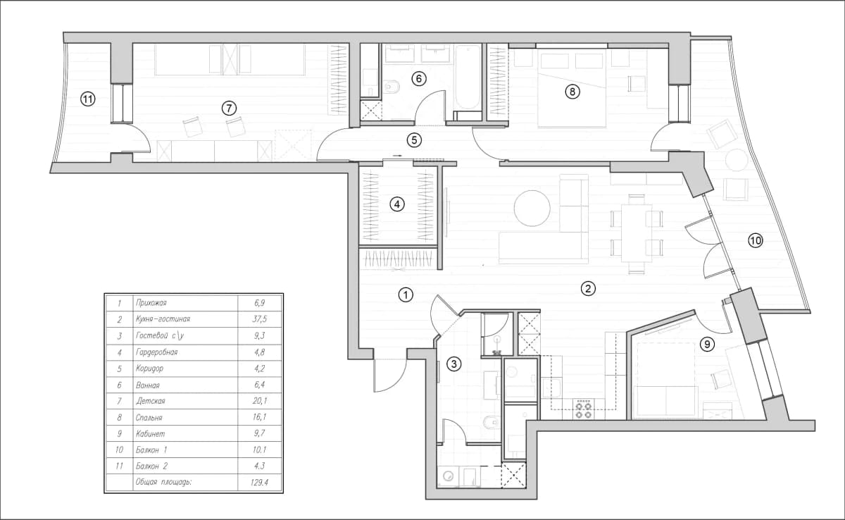
נקודות המפתח בפרויקט
דירה בהשראת הטבע: יצירת מרחב מגורים אקולוגי ובריא המותאם למשפחה מרובת ילדים. השפה העיצובית משלבת נגיעות צבע עזות לצד חיפויי אריחים בדוגמאות אתניות המעניקים לחלל אופי מובחן.

חומרים ויעילות אנרגטית
בתהליך התכנון הושם דגש על חומרים בעלי יעילות אנרגטית גבוהה ומרקם עשיר. הבחירה בריצוף שעם במראה עץ מעניקה מגע רך וחם המייתר צורך בחימום תת-רצפתי. אלו שולבו לצד לייסטים מעץ אלון מלא, פנלים מגבס וכלים סניטריים בחיפויים טכנולוגיים מתקדמים.
בחדרי השינה נבחרה פלטת גוונים רכה, ובחדר הבנות שולב טפט מאויר.

נגיעות של צבע
חדר הרחצה והחלל הציבורי זכו לנגיעות צבע המפיחות בהם חיות. במטבח הנישה הקומפקטי בולט חיפוי קיר בדוגמה אתנית על רקע בהיר ונקי.
מפתח היציאה למרפסת הוחלף בדלתות זכוכית מרצפה עד תקרה, המאפשרות לאור טבעי לשטוף את הדירה לאורך שעות היום.
תכנוןחזון עיצובי



































































