דירה בקומפלקס Petrovskaya Riviera
האי פטרובסקי בסנט פטרסבורג, ששימש בעבר כמרחב פנאי היסטורי, הפך לאחד מאזורי המגורים המבוקשים בעיר. הפרויקט נהנה מנוף פתוח לקו המים של נהר הניבה ולמרכז ההיסטורי.
עבור הלקוחות, שרכשו שתי דירות סמוכות בפרויקט, תוכנן איחוד יחידות לכדי מרחב מגורים הרמוני. המטרה הייתה יצירת חלל פנים מודרני, נקי ומינימליסטי עבור משפחה בת ארבע נפשות.
הפרוגרמה
התכנון הפונקציונלי נבנה סביב צרכי בני הבית:
- חלל ציבורי פתוח (Open Space) המשלב מטבח וסלון.
- סוויטת הורים הכוללת חדר רחצה וחדר ארונות פרטיים.
- שני חדרי ילדים.
- שירותי אורחים.
- חדר שירות ייעודי לכביסה.

התכנון האדריכלי
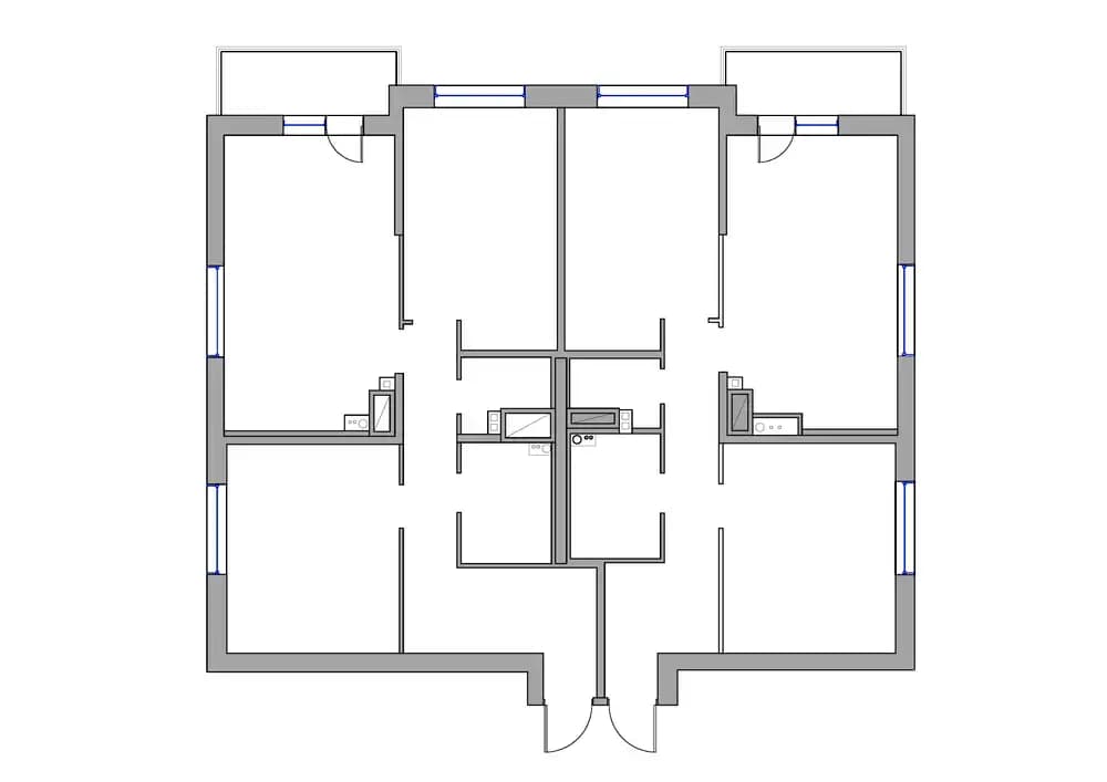
נתוני הפתיחה של הדירות המאוחדות אפשרו ריכוז של ארבעה אזורים רטובים בחלקו המרכזי של הנכס: חדר הרחצה של סוויטת ההורים, שירותי האורחים, חדר הכביסה וחדר הרחצה של הילדים.
הכניסה הראשית מובילה למבואה ומסדרון המקשר בין חדרי הילדים ואזורי השירות, עד להגעה אל לב הבית – חלל המטבח והמגורים.
הדירה ממוקמת בקצה הבניין, נתון המעניק לה חלונות דרום-מערביים רחבים. האור הטבעי והמבט אל נהר הניבה הקטן הופכים את החלל הציבורי למרכז שטוף שמש, המחולק פונקציונלית לאזור אירוח, פינת אוכל ומטבח עבודה.

מפינת האוכל קיימת יציאה למרפסת עם זיגוג ללא מסגרת (Frameless). הפתרון מאפשר רצף ויזואלי לעבר הנהר והשקיעה, ללא הפרעות אדריכליות.
אזור המטבח מוביל אל החלקים הפרטיים של הבית: חדר הכביסה וסוויטת ההורים.
חלוקת הדירה מגדירה ארבעה אזורים מובחנים:
- אזור הכניסה: מבואה וחדר ארונות.
- אזור הילדים: חדרי שינה, חדר רחצה ושירותי אורחים.
- המרחב הציבורי: מטבח, פינת אוכל וסלון.
- האזור הפרטי: סוויטת הורים עם חדר רחצה וחדר ארונות צמודים.

עיצוב מודרני בקו נקי
החזון העיצובי התמקד ביצירת חלל מודרני נטול עומס דקורטיבי.
בסיס הפלטה נשען על גוון אפור-נייטרלי בקירות הבית. בחדרי הילדים נעשה שימוש בטפטים בעלי מוטיבים מותאמים: מעבר צבע רך בחדר הבת והשראת עולם התעופה בחדר הבן.
קירות הסלון עוטרו בפרופילים עדינים בגוון הקיר, בעוד שגב המיטה בסוויטת ההורים חופה בנגרות בדוגמת סרגלים להוספת עומק טקסטורלי.
עבור חדרי הרחצה נבחר גרניט פורצלן בפורמט ענק במראה טבעי של שיש, עץ וגרניט שחור. הריצוף בשאר חלקי הבית הוא פרקט אגוז בדוגמת פישבון הונגרי.

במרכז הסלון הוצבה ספה פינתית בגוון כחול עמוק, המהווה את נקודת המפגש המרכזית בבית. קיר דקורטיבי המשלב קמין חשמלי יוצר הפרדה מעודנת בין המטבח לסלון ומשמש גם כקיר טלוויזיה.
כדי לשמור על מרחב פתוח, נמנענו מעומס רהיטים; אל מול החלונות הוצבה קונסולה מינימליסטית ומעליה יצירת אמנות עכשווית.

המטבח עוצב בסגנון מונומנטלי. חזיתות עץ אגוז משתלבות עם יחידות תחתונות בשחור מט. עובי משטח העבודה מעניק למטבח נוכחות אדריכלית עוצמתית הממשיכה לדלפק ישיבה הפונה לסלון.
לאורך קיר פינת האוכל תוכננו יחידות גבוהות למכשירי חשמל אינטגרליים, בשילוב ויטרינות זכוכית לאחסון כלי הגשה. במרכז הפינה ניצב שולחן עץ עגול, שהקימורים שלו מרככים את הקווים הישרים של המטבח.

בסוויטת ההורים שולבה פינת טיפוח אינטימית עם מראה עגולה ושידה מעוצבת.
מערך התאורה בדירה מבוסס על תרחישים משתנים. בשל גובה התקרות, נעשה שימוש במערכות צבירה (Magnetic Tracks) שקועות לצד גופי תאורה צמודי קיר המוסיפים חמימות. מעל הספה ושולחן האוכל נבחרו גופי תאורה מינימליסטיים של מותג Bezhko, בעוד שבמסדרונות ובחדרי הילדים שולבו ספוטים ונברשות מעוצבות.
האלמנטים הטכניים, בהם מפסקים ושקעים, נבחרו בגוון כהה ליצירת ניגודיות גרפית על גבי הקירות.

ליצירות האמנות תפקיד מרכזי בפרויקט: עבודה מופשטת של יבגני זרמבה מעל הקונסולה, ויצירה של ויאצ'סלב מיכאילוב בפינת האוכל המתכתבת עם גווני המטבח.
התוצאה היא פרויקט פונקציונלי ומדויק, המשדר איפוק ונינוחות ומייצר סביבת מגורים עוטפת לכל בני המשפחה.







































































