הקונספט העיצובי
הקונספט נולד מתוך המיקום הגיאוגרפי של הפרויקט. החיבור לטבע, ליער ולמפרץ הסמוך, הוליד צורך במרחב המאפשר התנתקות – מקום המזמין התמסרות לשלווה מול האח, תחת תאורה רכה ומלטפת.

חזון התכנון
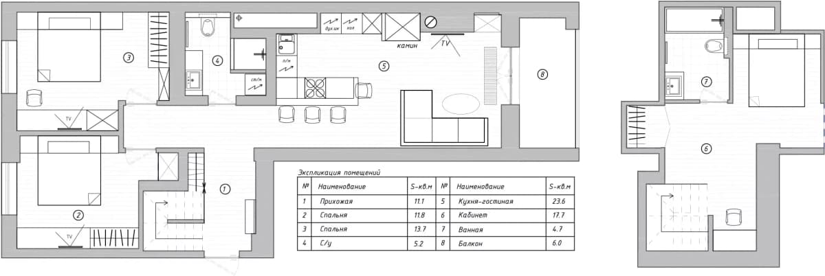
קומת הכניסה מתאפיינת בטונאליות כהה ועמוקה, המאוזנת באמצעות תקרות גבוהות השומרות על זרימה מאווררת בחלל. תכנון תאורה מדויק מאפשר יצירת אטמוספירה משתנה – מאווירה חיונית במהלך היום ועד לאווירת Hygge עוטפת ונינוחה בשעות הערב.

הקומה השנייה
בניגוד לקומת הכניסה, הקומה השנייה מאופיינת בלובן מוחלט, הממשיך גם אל יחידת הרחצה המינימליסטית. המראה הניטרלי מקבל עומק באמצעות סגנון ניאו-קלאסי מוקפד, המשלב אלמנטים בלתי צפויים כמו טפטים אנגליים בהדפס ג'ונגל פראי.
התוצאה היא נכס בעל אופי נועז, המשלב יצירתיות לא קונבנציונלית עם דיוק פונקציונלי עבור הדיירים.

תכנוןחזון עיצובי















































